
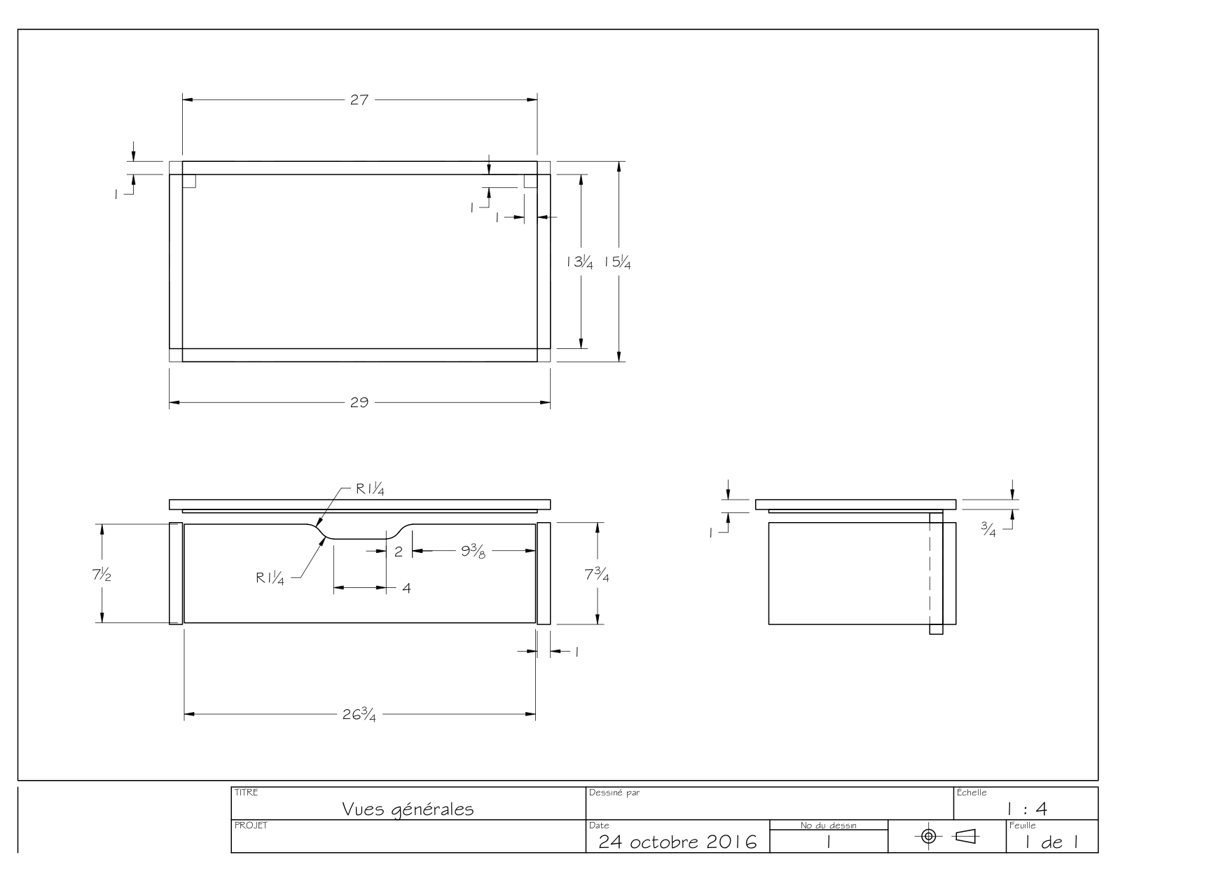
J’avais cette vieille table avec un dessus assez moche, peinte en bleue. J’ai enlevé le dessus, et j’ai fait mon premier dessin d’atelier sous Autocad pour mon usage. Le but est double, il faut savoir quoi couper et déterminer la quantité de bois à acheter. Comme je n’avais pas d’équipement à l’époque, j’ai acheté mon bois déjà blanchi sur les quatre faces.
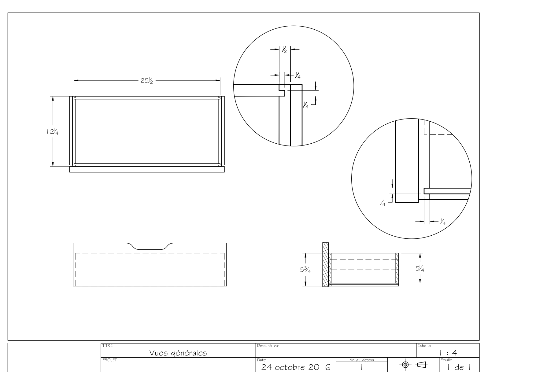
Pour la petite histoire, les dimensions sur les planches que j’ai acheté correspondaient aux dimensions brutes et non finies. Il me manqua donc un pouce en largeur sur toutes mes pièces. C’est pourquoi j’ai fait un insert en cerisier sur le dessus qui après réalisation s’avère très beau. J’ai appris deux leçons ce jour là : Toujours vérifier les mesures et ne jamais oublier son ruban à mesurer.




